現在位置: 福岡市ホーム の中のくらし・手続き の中の住まい・引越し の中の【11月5日申し込み受付開始】市営千代六丁目西住宅 入居者募集について
更新日:2025年10月3日

 【11月5日申し込み受付開始】市営千代六丁目西住宅 入居者募集について

福岡市営千代六丁目西住宅の入居者を次のとおり募集します。
この住宅は平成24年度に建設され、市営住宅の建替事業の仮移転先として活用していたものを、今回初めて公募するものです。

今回の募集で仮当選した申込者は、部屋決めや契約書類の説明等のため入居者説明会に参加いただく必要があり、管理組合設立・役員選出を行うなど、他の住宅と異なる部分がありますので、入居を希望される方は募集案内書をよくお読みいただき、申込受付期間中に申し込んでください。

 

1. 住宅概要

所在地 福岡市博多区千代六丁目4番13号
竣工年度 平成24年度
構造 高層耐火・10階
間取り 3DK
住戸専有面積 60.94㎡(平方メートル)
家賃 29,000円 ~ 66,700円
※家賃は申込世帯の月収額に応じて決まります。計算方法はこちらから
共益費
管理戸数 79戸
設備 エレベーター、都市ガス、敷地内駐車場(台数制限有)
小学校 千代小学校(東公園8番1号)
中学校 千代中学校(千代四丁目17番47号)
高等学校 第4学区
交通機関 西鉄バス「千代五丁目」 徒歩5分、福岡市地下鉄貝塚線「千代県庁口」駅 徒歩15分、
福岡市地下鉄貝塚線「馬出九大病院前」駅 徒歩20分

 

写真で見る千代六丁目西住宅

外観

 

  外観①  外観②

 

 

内観

 

内観①  内観②  内観③

 

内観④  内観⑤  内観⑥

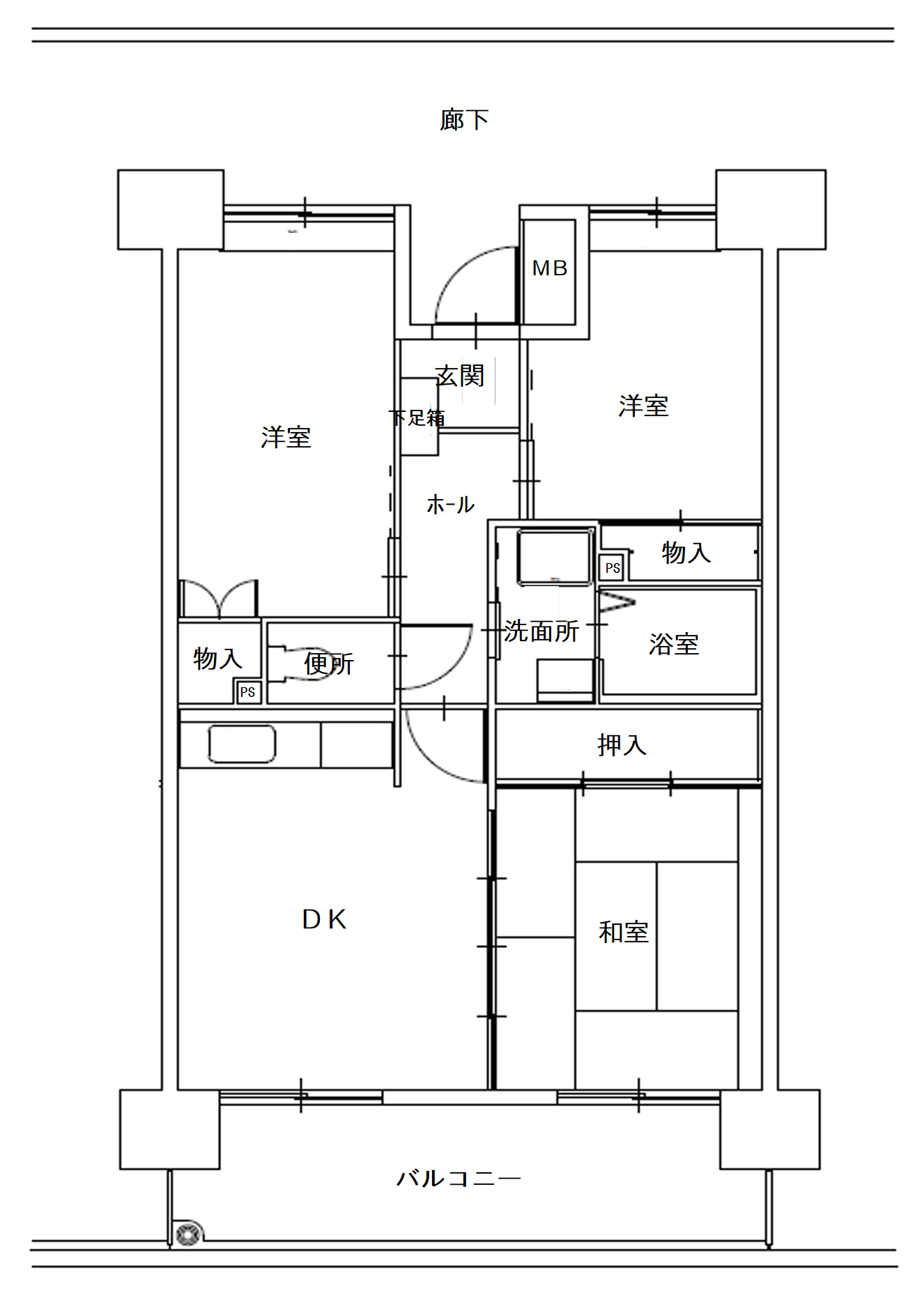
間取り図

市営千代六丁目西住宅間取図

 

地図・周辺環境

 

2. 募集予定戸数

  • 一般世帯向け 16戸
  • 子育て(中学生以下)・若年夫婦世帯向け 20戸
 

3. 募集案内書および申込書

1.配布期間

令和7年11月5日(水曜日)から11月14日(金曜日)まで

 

2.配布場所

  • 市営住宅センター(福岡市住宅供給公社1階) 午前9時 ~ 午後5時
  • 各区役所情報コーナー 午前9時 ~ 午後5時
  • 入部及び西部出張所 午前9時 ~ 午後5時
  • 情報プラザ(市役所1階) 午前9時 ~ 午後8時
  • なみきスクエア(東区千早) 午前9時~午後9時

 

4. 申し込みについて

1.受付期間

令和7年11月5日(水曜日)から11月14日(金曜日)まで
※窓口での相談は実施しておりません。申し込みに関するご不明な点は、受付開始日の11月5日(水曜日)以降に福岡市住宅供給公社募集課まで電話にてお問い合わせください。

 

2.申込方法

(1)郵送

受付期間:令和7年11月5日(水曜日)から11月14日(金曜日)まで(11月14日の消印有効)
郵送先:〒812-0025 福岡市博多区店屋町4番1号 市営住宅センター(福岡市住宅供給公社)募集課

 

(2)インターネット

受付期間:令和7年11月5日(水曜日)9時から11月14日(金曜日)23時59分まで

インターネット申込みページは11月5日(水曜日)9時から福岡市住宅供給公社のホームページにて公開します。

福岡市住宅供給公社のホームページはこちら

※インターネット申込みページは、福岡市公式ページとして株式会社グラファーが運営しています。
 

3.注意事項

市営住宅の申し込みは1世帯につき1件のみです。

市営千代六丁目西住宅と令和7年度11月定期募集(抽選方式)で募集する他の住宅の2件以上に申込した場合は失格になります。

 

5. 申込資格及び選考方法

1.申込資格

(1) 申込者本人が福岡市に住んでいるか、勤務していること

市外居住の方でも福岡市内に勤務(通勤)している方は申し込むことができますが、申込締切日現在で既に同一事業所に4ヶ月以上継続して雇用され、かつ、一週間の勤務時間数が30時間以上であることが必要です。その場合でも、入居契約前に勤務先を退職すると当選されても失格になります。
また、申込締切日現在、福岡市内居住の方でも入居契約前に福岡市外へ転出されると当選されても失格になります。
申込者本人は名義人となります。申込後の名義人の変更はできません。

 

(2) 日本国籍を有しているか、または外国人にあっては「中長期在留者」(在留カードを交付されている方)もしくは「特別永住者」(特別永住者証明書を交付されている方)であること

資格については、住民票で確認します。

 

(3) 現在住宅に困っていること

現在、市営住宅の名義人となっている方を含む申込み(車椅子使用者世帯に申込む場合は除く)や、同居しようとする親族を含め、市内市外にかかわらず持家がある方の申込みは原則できません。(入居手続きまでに持家を処分する場合を除く)

※ 持家がある方は入居契約時までに持家を処分したことを証明する書類(不動産売買契約書等)を提出する必要があります。また、所有者が移転したことを確認するため、入居後1カ月以内に建物登記全部事項証明書を提出していただきます。

 

(4) 過去に市営住宅を不正に使用したことがないこと

福岡市営住宅に係る家賃等の滞納がある方は申込みできません。また、過去に迷惑行為、福岡市営住宅条例等に違反し、明渡し請求を受けたことがある方は、原則として申込みできません。なお、福岡市営住宅に住所を有する方は、市の同居承認を受けていることが必要です。(無断で入居している方は不可)

 

(5)暴力団員でないこと

申込者及び現に同居し、または同居しようとする親族が暴力団員(「暴力団員による不当な行為の防止等に関する法律」に規定する暴力団員をいう)でないこと。

※入居資格について警察本部に照会いたします。暴力団員に該当する場合は入居できません。

 

(6) 申込者本人が成年者であり、現に同居する親族がいること(年齢基準日は申込締切日です)

(ア) 婚約中や事実上婚姻関係と同様の事情にある方も申込みは可能ですが、夫婦の別居(同居しない場合は、離婚が必要)など、世帯を不自然に分割した申込みや他に扶養すべき方がいる親族との申込みはできません。
(イ) 事実上婚姻関係と同様の事情にある方の申込みは、次のいずれかを満たしている人に限ります。
① 申込締切日までに住民票の続柄に「未届の夫」または「未届の妻」と記載する届出を完了していること(続柄の記載が「同居人」は不可)。
② 原則、申込締切日までに福岡市より「パートナーシップ宣誓書受領証」の交付を受けていること。また、福岡市パートナーシップ宣誓制度と同等の制度であると市長が認めた地方公共団体のパートナーシップに関する制度による証明書を受けたパートナーシップ関係にある方。
(ウ) 申込書に記載したとおりの世帯構成で入居していただきます。申込書の記載と異なる世帯構成で入居する場合は失格です。(出産・死亡の場合を除く)
(エ) 親と同居しない未成年者(孫・甥・姪等)との申込みは相応の理由が必要です。申込時に理由を記載した書類を同封してください。
例:「両親がともに亡くなった孫を引き取り、令和2年7月より同居しています」など。

 

(7) 収入基準にあうこと

申込者および同居しようとする親族(婚約者、事実上婚姻関係と同様の事情にある人を含む)の収入を合わせ、諸控除後の月収額が、158,000円以下であることが必要です。

ただし、申込者または同居親族が次の(ア)~(ク)の要件に該当する場合は214,000円以下に、(ケ)~(シ)に該当する場合は259,000円以下になります。

  • (ア)身体障害者手帳を所持し1級から4級の人
  • (イ)精神障害者保健福祉手帳を所持し1級または2級の人
  • (ウ)療育手帳を所持しAまたはB1の人、または、重度または中度の知的障がい者であることを児童相談所の長か更生相談所の長から判定された人
  • (エ)戦傷病者手帳を所持し恩給法別表第1号表の2の特別項症から第6項症までまたは別表第1号表の3の第1款症の人
  • (オ)原子爆弾被爆者で、厚生労働大臣の認定を受けている人
  • (カ)引揚者で引き揚げた日から起算して5年を経過していない人
  • (キ)申込締め切り日時点で、申込者が60歳以上の人(同居する親族がいる場合はそのいずれもが60歳以上の人か18歳未満の人)
  • (ク)ハンセン病療養所入所者等
  • (ケ)中学生以下の児童がいる世帯
  • (コ)18歳(18歳に達する日以後の最初の4月1日までの間にある方)までの児童が3人以上いる世帯
  • (サ)配偶者がなく、かつ20歳未満の子を扶養している世帯
  • (シ)母子手帳を所持し、現在妊娠している方がいる世帯

 

 

(8)【子育て(中学生以下)世帯のみ】申込者と中学生以下(平成22年4月2日以降に出生)の子がいること

  • (1) 入居後、子どもが中学校を卒業しても住むことができます。
  • (2) 親子の別居など、世帯を不自然に分割した申込みや他に扶養すべき方がいる親族との同居など、特に同居する理由がない親族との申込みはできません。

 

(9)【若年夫婦世帯のみ】申込者及び配偶者(婚約者)・パートナーの年齢の合計が80歳以下であること

  • (1) 婚約中等の方は、仮当選後の資格審査時に婚姻等に関する誓約書を提出していただきます。また、入居契約時までに婚姻等を証明する書類(戸籍全部事項証明書もしくは婚姻届受理証明書またはパートナーシップ宣誓書受領証)を提出していただきます。

2.選考方法

公開抽選で仮当選者及び補欠者を決定します。補欠者は仮当選者の中から辞退者及び失格者が生じた場合に繰上当選となります。繰上当選となった場合は、文書で通知します。

 

3.抽選会

日時:令和7年12月4日(木曜日) 午前10時から1時間程度(予定)
場所:早良市民センター 4階ホール

※抽選会への参加の有無は当落には影響ありません。
※当日、抽選会場へのお車でのご来場はご遠慮ください。

 

4.資格審査

抽選で仮当選となった方は、市営住宅の入居資格を確認するための審査を受けていただきます。

詳しい資格審査の日時・必要な書類などについては、文書でお知らせします。

5.入居説明会

日時:令和8年1月頃
場所:未定

※入居資格の確認を行う資格審査終了時に詳細をご案内します。
※入居説明会では部屋の場所決めや鍵渡し、契約書類等の交付に加え、管理組合設立の案内を行います。

 

 

6.千代六丁目西住宅以外の住宅の募集について

詳細は、福岡市住宅供給公社ホームページをご参照ください(11月5日(水曜日)公開予定)。

 

7.申込みをする皆さまへ

市営住宅は市民共有の財産です。

市営住宅は公営住宅法・市営住宅条例等に基づいて、建設・管理している住宅です。市民の方々が納められた税金が、その建設・管理のために使われています。
また、住宅にお困りの方々のために、一般的な民間賃貸住宅よりも安く家賃が設定されています。

 

共同住宅のルールを守る義務があります。

  • ペットの飼育・騒音・不法駐車などで、他人に迷惑をかけてはいけません。
  • 市営住宅は、原則として事業用など住宅以外の用途に使用できません。
  • その他、法令・条例等で定められたルールを守っていただきます。
 

家賃以外に共益費の支払いが必要です。

外灯・階段灯などの電気代や共用水洗の水道代などの入居者が共同で使用する費用は、家賃以外に共益費として入居者全員で負担していただきます。
共益費については、入居者によって構成されている管理組合(自治会など)が徴収し電力会社などに支払っていただいています。入居後は、必ず管理組合(自治会など)へ共益費をお支払いください。
また、共同生活の中では、良好な地域コミュニティをつくることも大切です。自治会活動への参加やご協力もお願いします。